logo
FG - CENTRO GYROTONIC

Cronologia 2013
Luogo Venezia - Centro Storico
Commitente Privato
Prog. Architettonica Studio SAARI
Prog. Impianti Elettrici Impiantistica Veneziana
Prog.Impianti Mecanici Impiantistica Veneziana
Stato Progetto Progetto Esecutivo




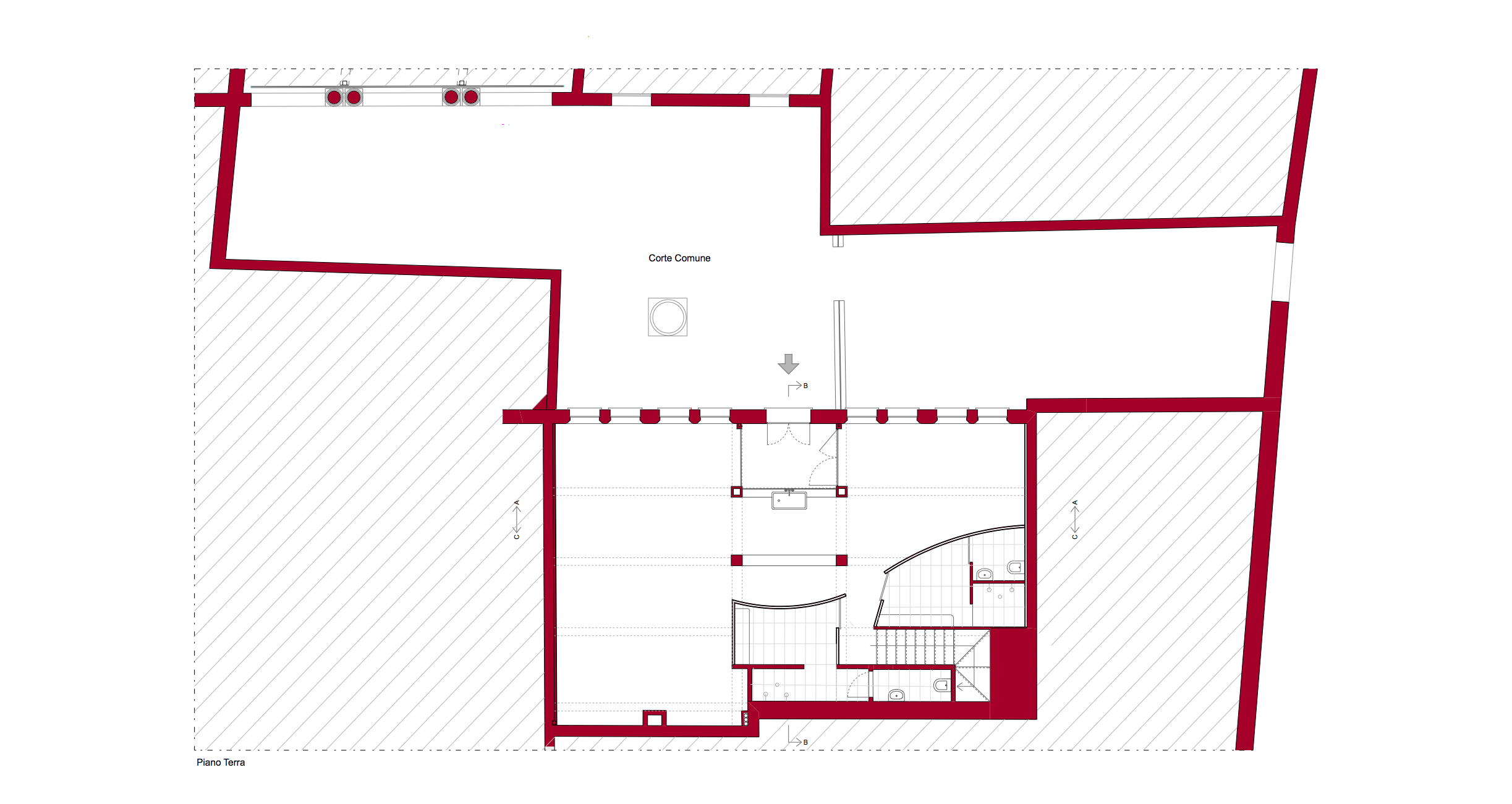
Il progetto per la realizzazione della nuova sede del Centro di Gyrotonic di Venezia si sviluppa in una porzione di un vecchio opificio facente parte del patrimonio dell'Architettura Industriale del centro storico.
Il fabbricato su cui si interviene si sviluppa su due livelli caratterizzati da due grandi open spaces.
L'intervento consiste nell'inserimento al piano terra di alcuni volumi atti ad ospitare i servizi del nuovo centro.
La scelta di usare materiali leggeri e traslucidi, come il policarbonato alveolare, e di limitarne l'altezza é dettata dall'esigenza di non alterare la percezione dei volumi originari.