logo
DD - Piano di Lottizzazione

Cronologia 1998
Luogo Noicattaro – BA
Commitente Privato
Progetto Arch. Alessandro Cosmo
Progetto Arch. Maria Rita Carella




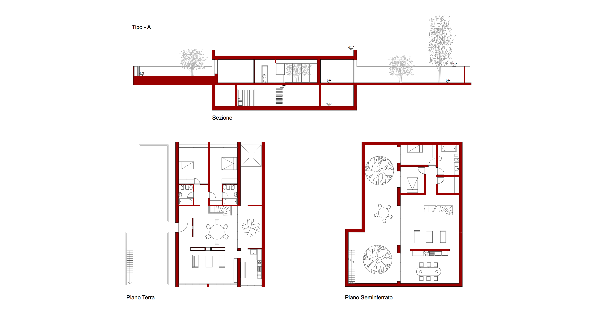
Il Progetto riguarda il disegno di una nuova lottizzazione nel comune di Noicattaro a sud della città di Bari.
Per lo sviluppo del piano sono state studiate due diverse tipologie di abitazione in duplex che insistono su lotti di 1000 mq.
Le due tipologie declinano in modo differente la casa a corte con l’impluvium che diventa pozzo luce per i piani ricavati nel seminterrato.