logo
MONASTERY - Corte Bracco dei Germani

Chronology 2010 - 2011
Location Corato - BA
Client Private www.cortebracco.it
Architectural Planning Studio SAARI
Site Manager Studio SAARI
Contractor Paterno Costruzioni
Electrical Installations Amorese Serafino
Project Status Powered




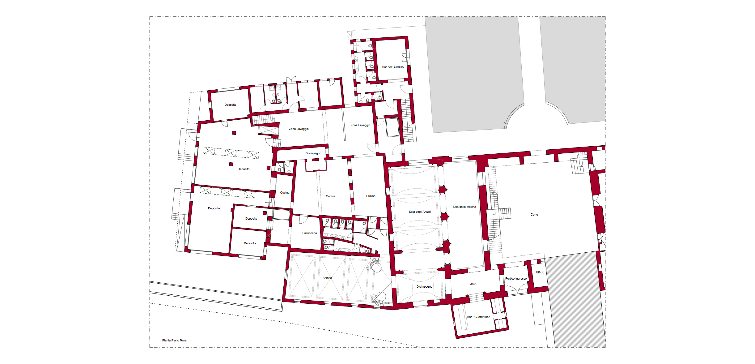
Originally it was a monastery of the Friars Minor of the Observance, built in local bare stone and calcareous stone between the eighteenth and the nineteenth century. In the early 90's it was faithfully restored with full respect of the original style and turned into a reception room.
Old cellars and crypts have been preserved, as well as the ice house and the mill. The central element of the Monastery is the court made of "chianca", white stone blocks, which leads to various parts of the architectural complex: the hall of the Fireplace , the lounge of Arches, the hall of Tapestries, the hypogeum, the guests rooms, and a luxuriant Mediterranean garden on the outside.
The project, completed in 2011, has concerned the rooms on the ground floor with an intervention on a part of the ceiling with the insertion of new vaulted ceilings imitating the original imposts and was completed with a new lighting system that highlight the existent structures.
The project has also involved the fireplace room, which had already been designed to accommodate the indoor bar, redesigning it from top to bottom.